3
3
2945
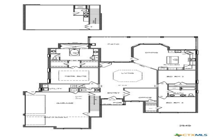
Property Description: The Fremont floorplan by Carothers Homes is designed with a perfect blend of practicality, style, and comfort. The spacious foyer opens to a bright, open concept living, kitchen, and dining area. The living room is inviting, anchored by a beautiful corner fireplace, creating a warm atmosphere. The kitchen is a true standout, with quartz countertops, white painted custom cabinets including cabinet pulls, an island ideal for meal prep, and stainless-steel appliances. The adjacent dining area completes the entertainment space, making it the perfect area for gatherings. This home features three bedrooms, and a dedicated study providing ample room for family and guests. The primary suite is complete with a private bathroom featuring separate vanities, an oversized double shower, a garden tub creating a spa-like experience and two walk-in closets ensuring ample storage space. Setting this floorplan apart is the game room located upstairs, featuring a wet bar and a full bathroom. Additional features include a covered patio, privacy fence, front and back sod, and a sprinkler system. Schedule your showing today!!