5
4
4465
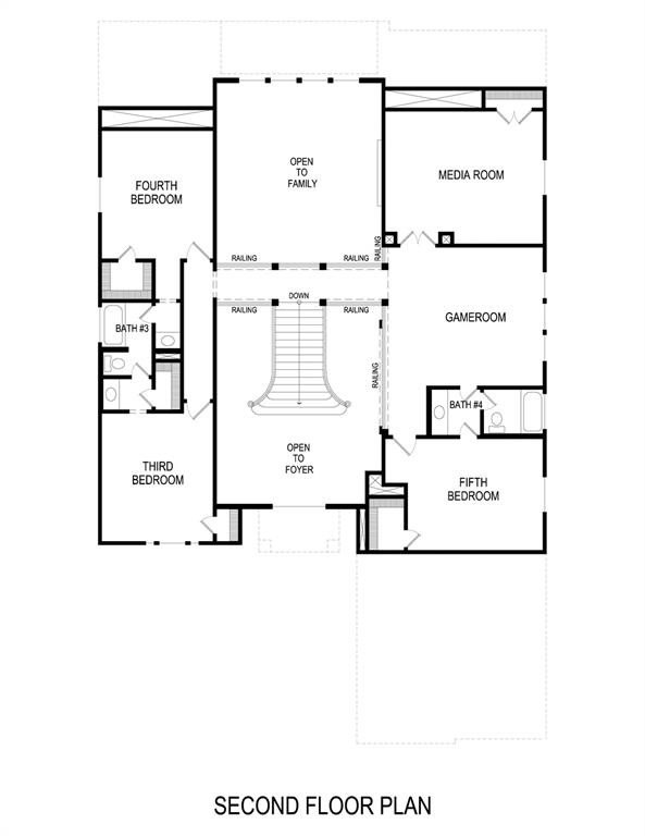
Property Description: MLS# 21066664 - Built by First Texas Homes - Dec 2025 completion! ~ Discover the Northcrest 2FSW with Media, Elevation C—a spacious 4,465 sq ft, north-facing home designed for comfort and style. This impressive residence features 5 bedrooms and 4.5 bathrooms, including 2 bedrooms conveniently located on the main floor. Enjoy the versatility of a dual staircase and the convenience of a 3-car garage. With its thoughtful layout and generous living spaces, this home is perfect for families seeking both luxury and functionality. Schedule your tour today and make this exceptional property yours. Northcrest 2FSW - C , Cambridge Estates , Prosper, TX