4
3
3496
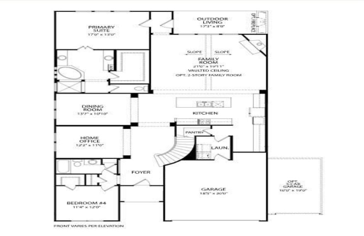
Property Description: MLS# 21066847 - Built by Drees Custom Homes - Feb 2026 completion! ~ Discover this stunning single-family residence in the sought-after Trinity Falls subdivision, set for completion by February 2026. Spanning 3,496 sq. ft., this traditional-style home boasts 4 spacious bedrooms and 4 bathrooms—2 full, 1 Jack & Jill and 1 half. With an open floorplan, the interior features an inviting eat-in kitchen, multiple living areas including gameroom and media, and a cozy gas log fireplace. Enjoy the convenience of a large backyard complete with a sprinkler system, perfect for outdoor entertaining. Additional highlights include a covered patio, a 3-car garage, and thoughtfully designed spaces like walk-in closets, pocket office and a pantry, plus home office. Located within the McKinney ISD, this property is close to Ruth and Harold Frazier Elementary, Johnson Middle School, and McKinney North High School. Experience modern living in this exceptional home!