3418 Tomahawk Drive Sherman, Texas 75090 Listing ID 21068053
3
2
1643
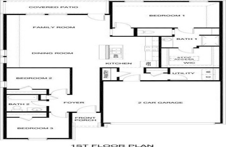
Property Description: New Construction by DR Horton. This beautiful 1 story home offers 3 Bedrooms, 2 Bathrooms, 2 Car Garage, and Covered Patio. Energy efficient, and smart home features included. Call today to schedule an appointment