4
3
2768
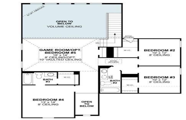
Property Description: Built by M-I Homes. This 2-story new construction home at 5304 Sundaresan Lane offers thoughtfully planned living spaces and modern design in the desirable Sutton Fields community. Key features include 4 bedrooms, 3.5 bathrooms, an open-concept layout that connects the family, kitchen, and dining areas, a spacious upstairs game room, and a 2-car front-load garage. Elegant finishes and fixtures throughout further enhance this new construction dream home. The home’s layout maximizes both space and flow. The open-concept living areas feature tall, volume ceilings, large windows, and a kitchen with a large island and ample counter space, perfect for hosting and everyday living. The main-level owner’s suite provides convenience and privacy, featuring a large walk-in closet and a deluxe bathroom with a double-bowl vanity and walk-in shower. Additional bedrooms are positioned upstairs, along with a spacious game room that offers flexible options for entertainment or work-from-home needs. Located in Sutton Fields, this community is zoned to the highly rated Prosper ISD, and is conveniently near parks and recreational opportunities, as well as major highways for easy access to Dallas–Fort Worth attractions and employment centers. This home combines style, functionality, and a prime location, making it an excellent opportunity for families seeking move-in-ready modern living. Schedule your visit today to learn more!