4
3
2886
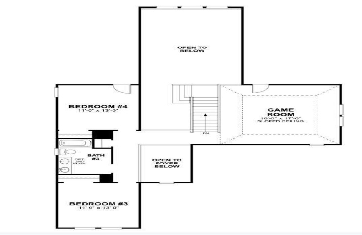
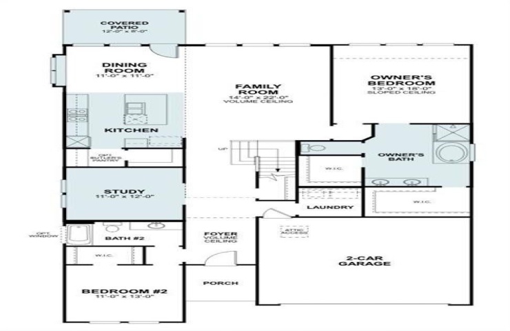
Property Description: Built by M-I Homes. Discover this stunning 2-story home at 5021 Ressina Drive in the amenity-rich community of Lily Creek at Sutton Fields. Thoughtfully designed, this home offers open, inviting living spaces filled with natural light, perfectly balancing everyday convenience with spaces for entertaining. Key Features: • 4 bedrooms, including a first-floor owner’s bedroom • 3 full bathrooms • Open-concept family, kitchen, and dining areas • Spacious upstairs game room • 2-car front-load garage The main level welcomes you with a bright foyer leading into the open family room and kitchen. The owner’s bedroom at the back of the home offers a private retreat with an en-suite featuring dual vanities, a walk-in shower, a private water closet, and two walk-in closets. Additional bedrooms provide comfortable accommodations for family or guests, while the upstairs game room adds versatile space for study, play, or entertaining. Located in Sutton Fields, this community is zoned to the highly rated Prosper ISD, and is conveniently near parks and recreational opportunities, as well as major highways for easy access to Dallas-Fort Worth attractions and employment centers. This 2-story home combines thoughtful design, functional living spaces, and a desirable location, making it a perfect option for families ready to move in. Schedule your visit today!