4
3
2768
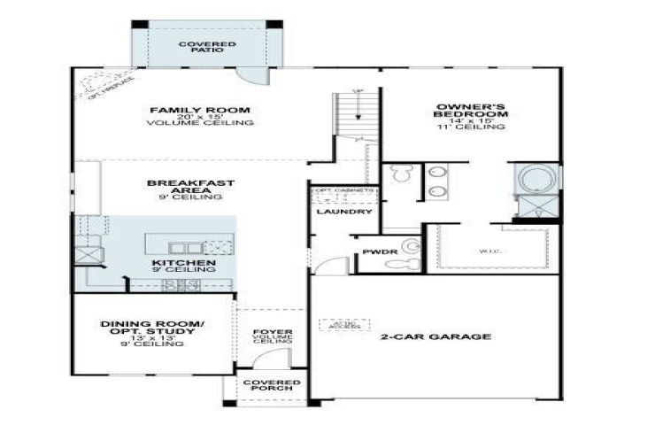
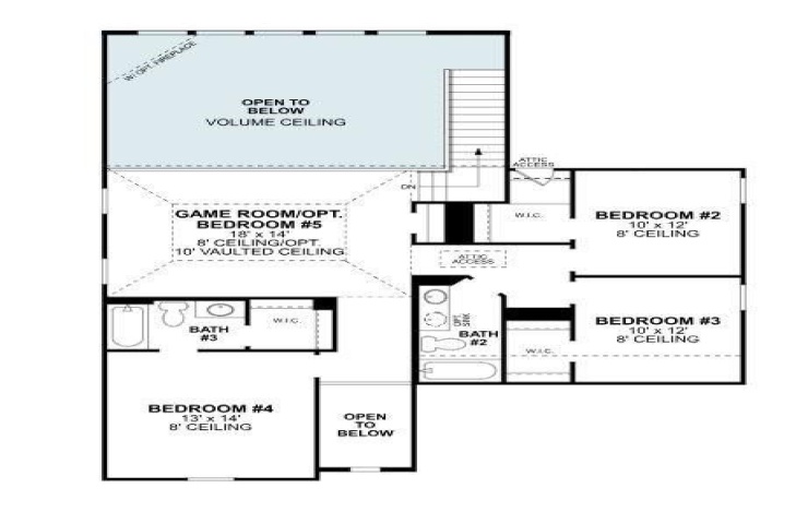
Property Description: Built by M-I Homes. Discover this beautifully designed new construction home at 5025 Lily Creek Drive. This thoughtfully planned 2-story home combines comfort, style, and functionality in the desirable Sutton Fields community, boasting incredible, resort-style amenities. Key Features: • 4 bedrooms including a first-floor owner’s bedroom • 3 full bathrooms and 1 half bathroom • Open-concept floorplan connecting family, kitchen, and dining areas • Upstairs game room providing flexible living space • 2-car front-load garage The home’s layout maximizes space while creating an inviting flow between rooms. The owner’s bedroom on the main level offers privacy and convenience, while the additional bedrooms and game room upstairs provide versatile space for family, guests, or recreation. The open-concept kitchen and living areas are ideal for entertaining and everyday life. Located in Sutton Fields, this community is zoned to the highly rated Prosper ISD, and is conveniently near parks and recreational opportunities, as well as major highways for easy access to Dallas-Fort Worth attractions and employment centers. This home represents an excellent opportunity to enjoy modern design, spacious living, and a prime location. Schedule your visit today!