5
4
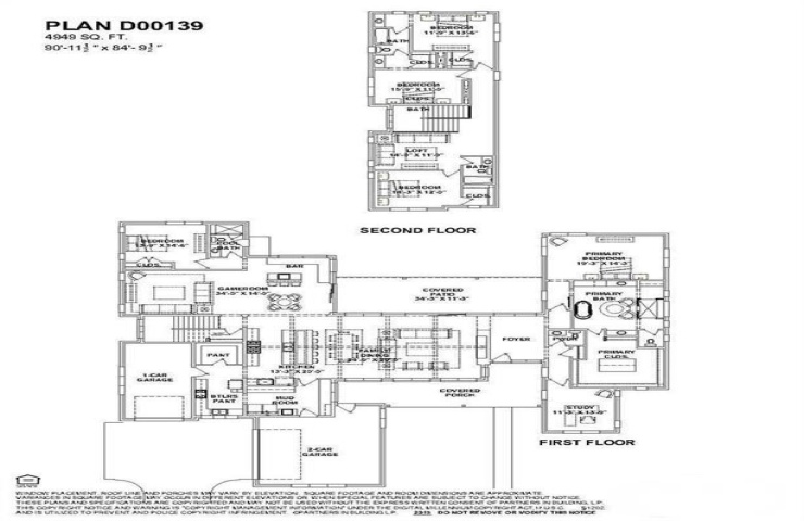
4949
Property Description: New Custom Home – Currently in the Design Phase. There’s still time to personalize the floor plan and make your interior selections. This luxury custom-built home in Chapel View, Heath, Texas offers an extraordinary amount of porch space and seamless indoor and outdoor living. Situated on a one-acre lot, and spanning 4,949 sq. ft., this 2-story masterpiece features 5 bedrooms and 4.5 bathrooms, including a grand primary suite. The chef’s kitchen, butler’s pantry, and bar make entertaining a breeze, while additional spaces like the study, mud room, and loft area provide versatility for work and play. Enjoy the enormous porch space, covered patio, and game room for endless family fun. A 3-car garage and high-end finishes complete this lavish retreat, epitomizing luxury living at its finest. Chapel View is located just minutes away from The Harbor in Rockwall with convenient access to I-30 and Hwy 80 for a hassle-free commute to downtown Dallas. Zoned to highly acclaimed Rockwall–Heath High School & Cain Middle School.