4
2
2762
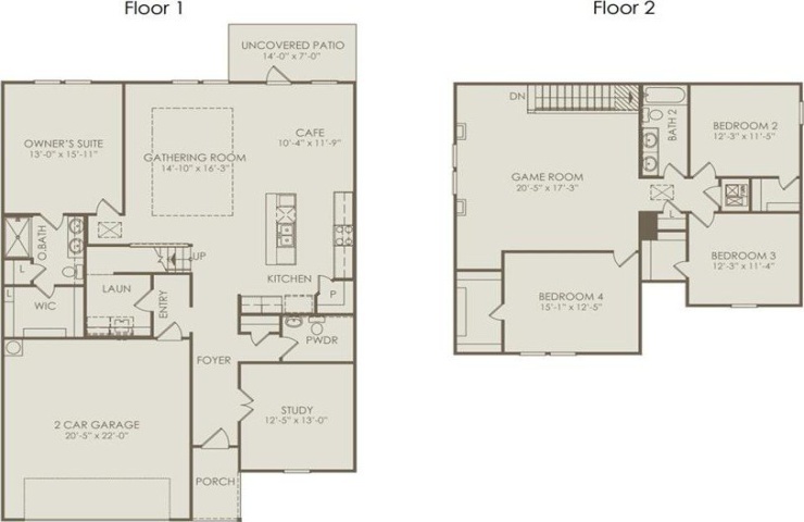
Property Description: NEW CONSTRUCTION - Welcome to your dream home at Centex Homes in Elizabeth Creek. A beautiful community in Haslet with great family-friendly amenities and stunning floor plans. The Stockdale Plan features 4BR-2BA + 2,762 sf. + Luxury Vinyl Plank Flooring + Game Room + Smart Home Package + Bright gathering room + Quartz countertops + Tray ceiling in gathering room + Elegant study. Available May 2025 for move in.