3
2
1845
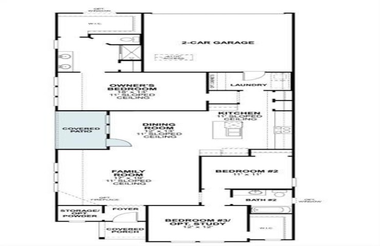
Property Description: Built by M-I Homes. Spacious Home for Sale in Crowley, TX This new construction home at 1036 South Hill Drive offers an open-concept of thoughtfully designed living space. Built by M-I Homes, this single-story home features an open-concept living space that creates a seamless flow throughout the main areas. This home features the following: 3 bedrooms with owner's bedroom conveniently located on the main level 2 full bathrooms Covered patio 2-car garage The home's layout maximizes functionality while maintaining comfort for daily living. The owner's bedroom is strategically positioned on the main floor for easy access and privacy. The open-concept design connects the kitchen, dining, and living areas, making it ideal for both everyday activities and entertaining guests. Located in Crowley, this home sits in a well-established neighborhood known for its family-friendly atmosphere. The area offers convenient proximity to several parks, providing excellent opportunities for outdoor recreation and activities. The neighborhood's thoughtful design emphasizes community connectivity while maintaining individual home privacy. M-I Homes has incorporated quality materials and attention to detail throughout the construction process. The home's design reflects contemporary living preferences while ensuring long-term durability and functionality. This new construction home presents an opportunity to own a thoughtfully designed space in a desirable Crowley neighborhood. Contact us today to learn more and schedule your visit today!