4
3
2446
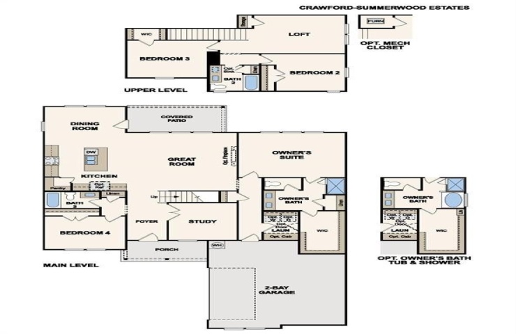
Property Description: Step into the Crawford plan! This beautiful home opens with a private study and a bedroom and bath across the foyer. At the heart of the home, you’ll find an airy great room that flows into a dining area and a large kitchen with a center island and a walk-in pantry. The primary suite is adjacent, boasting a walk-in closet and a private bath with dual vanities and a walk-in shower. Upstairs, two roomy bedrooms surround a customizable loft space. Also includes a covered patio! With an inspired lineup of floor plans—boasting contemporary open-concept layouts and desirable included features—this exciting new community offers something for everyone. You'll also love a prime location near shopping, dining and more! Est. November completion!