3
3
1965
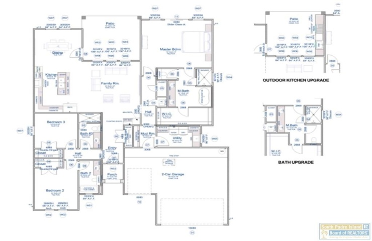
Property Description: Discover luxury living with this stunning 3 bedroom, 3 bath, 1,965 sq. ft. pre-construction home by Gallery Built Homes Featuring a 2-car garage, golf cart garage, irrigation, and beautifully landscaped front and back yards, this home offers the perfect blend of elegance and functionality. Nestled in the prestigious SPI Golf Community, just 20 minutes from South Padre Island, enjoy resort-style amenities including 2 heated pools, tennis courts, a meeting room, and an exercise room. Your dream home awaits!