4
4
3287
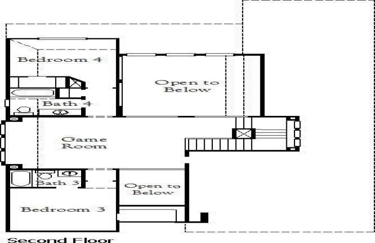
Property Description: MLS# 21072596 - Built by Coventry Homes - Nov 21 2025 completion! ~ Welcome to this stunning two-story north-facing home located in the award-winning Painted Tree community of McKinney. Boasting 3,287 square feet of thoughtfully designed living space, this residence combines modern comfort, luxury finishes, and a highly functional floor plan. With four spacious bedrooms and four-and-a-half bathrooms, this home offers plenty of room for family, guests, and entertaining. Step inside to soaring 20-foot ceilings that create an open, airy feel and fill the home with natural light. The downstairs guest suite is ideal for visitors or multigenerational living, providing privacy and convenience. The primary suite is a true retreat, featuring a charming bow window that adds elegance and natural light, along with a spa-like bathroom for ultimate relaxation. The heart of the home is the expansive kitchen and living area, designed for gatherings both large and small. Seamlessly connected to the dining space, this open-concept layout makes entertaining effortless. Extend your living space outdoors with the impressive mega covered patio, perfect for year-round enjoyment. Upstairs, discover a dedicated media room that’s perfect for movie nights, gaming, or watching the big game. Each secondary bedroom includes access to its own bathroom, ensuring comfort and privacy for everyone. Located in McKinney’s Painted Tree community, residents enjoy a unique lifestyle with resort-style amenities, lakeside living, miles of nature trails, and vibrant community events. Conveniently situated near top-rated schools, shopping, dining, and major highways, this home provides both tranquility and accessibility. Don’t miss the opportunity to make this beautifully crafted home yours. Experience luxury, comfort, and community living in one of the most sought-after neighborhoods in North Texas.