For Sale
$279,900
85 LINDA VISTA DR
Eagle Pass, Texas 78852
Listing ID 78332
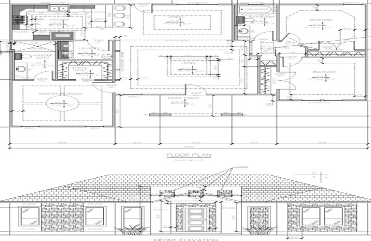
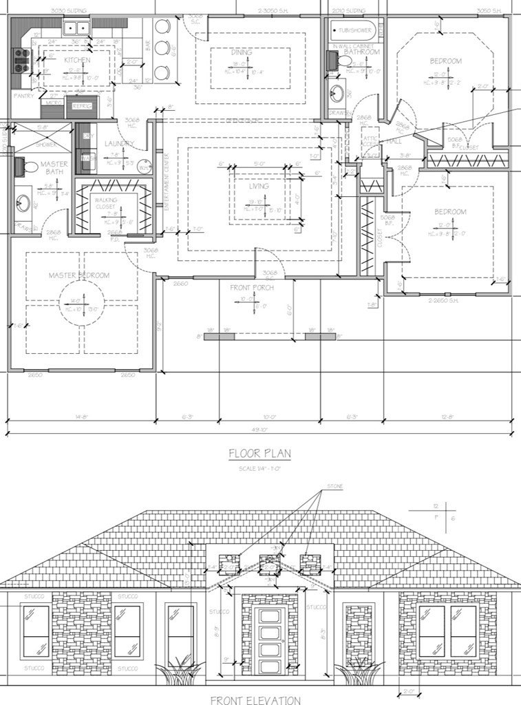
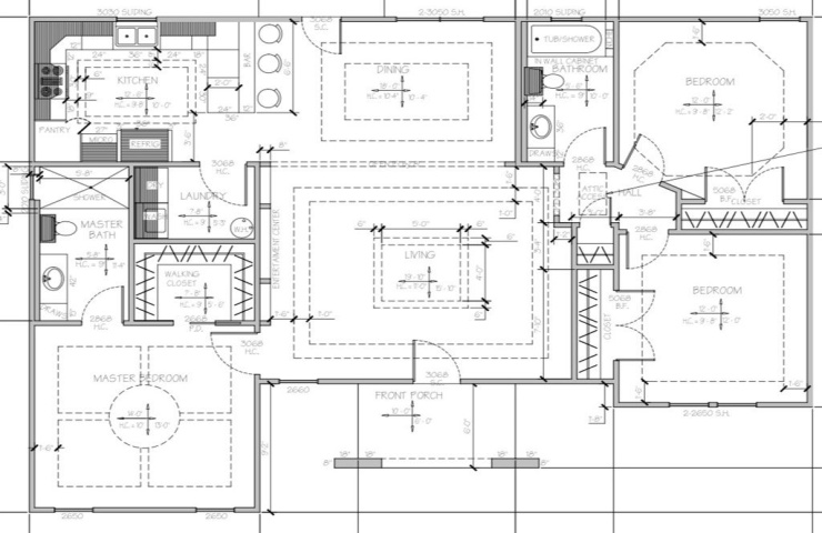
3
2
1460
Phone Number:
512-256-9091
Email:
Info@BuildersClearinghouse.com
No Image
www.buildersclearinghouse.com