4
3
2420
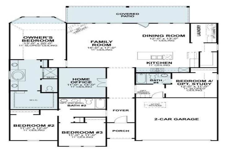
Property Description: Built by M-I Homes. Welcome to 1208 Birdie Court, a stunning new construction home built by M-I Homes, one of the nation’s leading new construction home builders. This beautiful home offers 4 spacious bedrooms, 3 full bathrooms, and an open-concept living space perfect for both everyday living and entertaining. Best of all, this home is located on a private cul-de-sac and sits next to fantastic open green space. The heart of this home showcases an open-concept design where the kitchen flows seamlessly into the dining and living areas, creating a perfect space for gathering with loved ones. Quality materials and thoughtful details are evident throughout this newly constructed residence. The well-designed floorplan maximizes functionality while maintaining an inviting atmosphere. The first-floor owner's bedroom provides privacy and convenience plus an extended bay window and features an elegant en-suite bathroom and ample closet space. The deluxe bathroom layout offers dual sinks with separate vanities, a luxurious soaking tub, a separate walk-in shower, and elegant tile selections all around. The additional bedrooms provide comfortable accommodations for family members or guests and a private home office secluded by French doors makes a great space to work from home. M-I Homes has carefully crafted this property with attention to detail and a focus on creating a comfortable, stylish living environment. The home's design combines aesthetic appeal with practical functionality, ensuring you'll enjoy both beauty and convenience in your new living space. This beautiful development is great for everyone to enjoy, due to its larger homesites, situation within Celina ISD, abundance of amenities, and proximity to Celina’s beautiful downtown area. Schedule your visit today!