5
2
2609
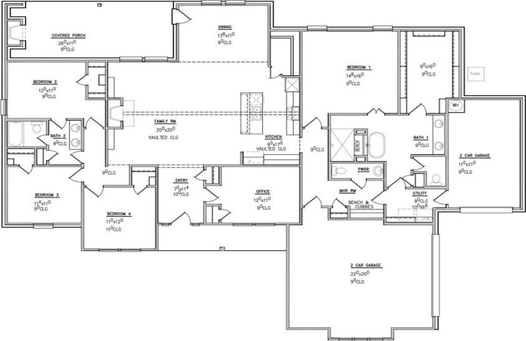
Property Description: Heavily treed and extremely private lot. Vaulted ceiling room and kitchen, oversized covered patio with wood burning fireplace, split bedrooms, 4 plus study with french doors, 2.5 bath, 3 car garage. Freestanding tub in master bath, mudroom split garage with 8' garage doors, half bath. Silver Sage Farms is a charming community with new homes nestled in the heart of Parker County. Fiber Optic internet is included until 2029 at no charge. Shops welcome, up to one horse and 6 chickens. Up to $10k seller incentive - see home for details.