4
3
2990
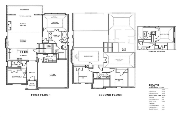
Property Description: The Heath plan features a modern, open living space with a dramatic vaulted ceiling in the family room. Enjoy a contemporary, neutral interior color palette and nail-down hardwood flooring throughout the main areas on the first floor. The kitchen includes upgraded cabinets and quartz countertops. Upstairs, you’ll find both a game room and a media room. The home boasts a white and gray brick exterior with a spacious front porch. It also includes an upgraded tech and lighting package. No MUD PID tax and low HOA dues make this home even more appealing. WELCOME HOME TO OUR SHADDOCK FAMILY!