3
2
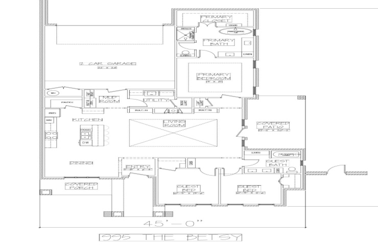
1995
Property Description: Southern Homes is proud to present The Betsy!! This beautiful 3 bedroom, 2 bathroom, 2 car garage GARDEN HOME is located in Stratford Pointe! You'll love the large covered patio. This Neighborhood is located in the popular Cooper School District. Timeless construction, fabulous location and a trusted name! WELCOME HOME! ***Selections subject to change. Cabinetry and small changes to plans subject to change at designers discretion***