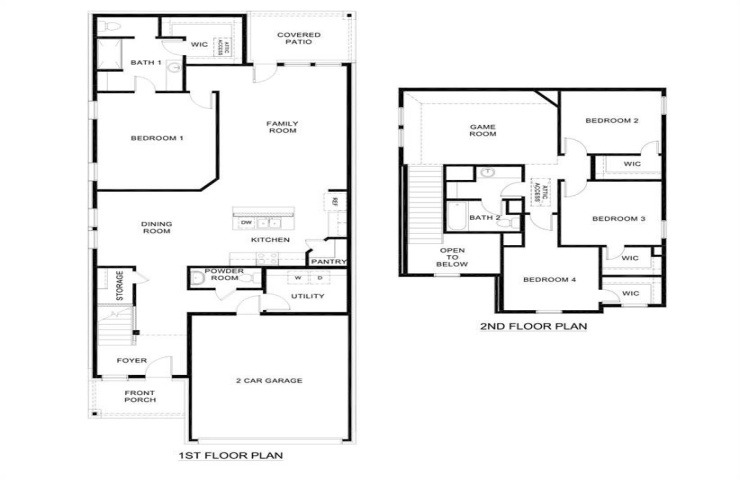
1816 Teton River Drive Blue Ridge, Texas 75424 Listing ID 21075927
4
2
2404
Property Description: New Construction by DR Horton. This beautiful 2 story home offers 4 Bedrooms, 2 Bathrooms, 2 Car Garage, and Covered Patio. Energy efficient, and smart home features included.