0
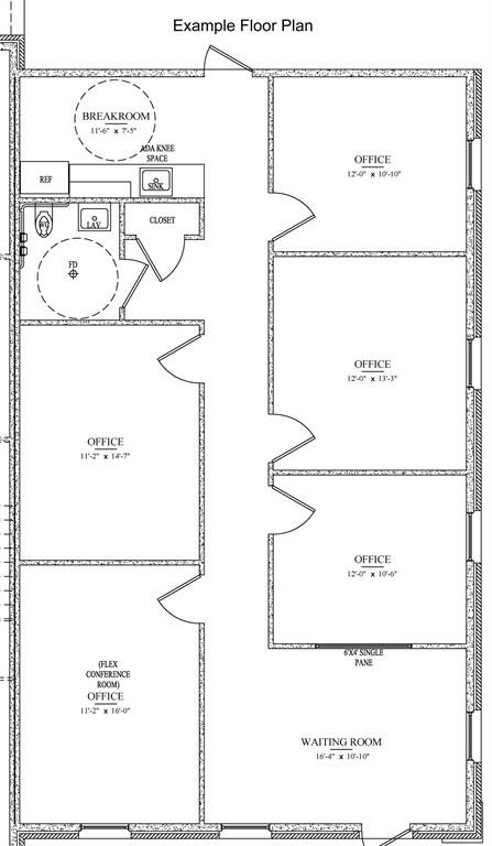
Property Description: 2 SUITES FOR LEASE $24 per SF per YR + NNN. New construction office space available for lease at the hard corner of Blue Mountain and Cumberland in South Tyler. Positioned in one of the city’s fastest-growing corridors, this prime location offers outstanding visibility and accessibility — ideal for professional or medical office users. • Suite 100 will be move in ready and Suite 300 is available for custom finish out. • Brand new construction. • Hard corner location at Cumberland Rd. and Blue Mountain Blvd. • Excellent visibility and accessibility. • Located in one of South Tyler’s fastest-growing corridors. • Close proximity to retail, dining, and residential communities.