4
3
2170
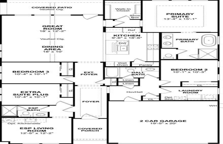
Property Description: Designed for comfort and flexibility, this home offers an impressive Extra Suite Plus complete with its own private bath and living room—ideal for multigenerational living, extended guests, or a private retreat. The great room and dining area come together under a soaring vaulted ceiling, creating an open, airy feel that buyers love. Step outside to the covered patio where indoor and outdoor living blend seamlessly, perfect for entertaining or relaxing evenings at home. At the heart of it all, the kitchen shines with a wall oven, sleek finishes, and a striking Arctic White quartz island that provides both workspace and gathering space. The primary suite is a true escape, featuring a generous walk-in closet and a spa-inspired bath highlighted by a freestanding soaking tub built for unwinding at the end of the day. A thoughtful layout, desirable features, and standout design make this one buyers will want to experience in person.