5
4
4088
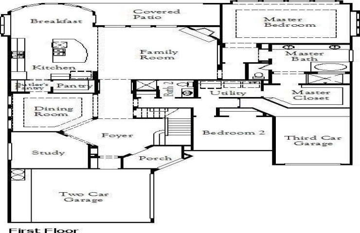
Property Description: MLS# 21076754 - Built by Coventry Homes - Const. Completed Dec 10 2025 ~ Experience elevated living in the Lockhart floor plan, featuring a sleek modern elevation and soaring high ceilings that create an airy, open feel. This spacious home offers 5 bedrooms, 4 full bathrooms, and 1 powder room, perfectly designed for both everyday living and entertaining. The heart of the home boasts a stylish kitchen with Bright Mythical countertops, flowing into shared spaces with elegant Nimbus Oak flooring and abundant natural light. Cozy up by the fireplace, enjoy movie nights in the media room, or unwind in the upstairs game room. With plush carpet in all bedrooms, and a curved staircase, every detail in this home blends comfort and modern design. Schedule your visit today and see why the Lockhart is the perfect place to call home!