5
3
2554
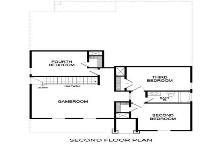
Property Description: MLS# 21077166 - Built by First Texas Homes - Nov 2025 completion! ~ Discover this spacious 5-bedroom, 3-bath home offering 2,554 sq ft of comfortable living. The open floor plan features soaring high ceilings, creating a bright and inviting atmosphere. A second bedroom with a full bath is conveniently located on the main floor, perfect for guests or multi-generational living. Enjoy outdoor entertaining on the covered patio, and take advantage of the attached 2-car garage for added convenience. Don’t miss your chance to make this exceptional home yours—schedule a tour today. Tyler F - B , Llano Springs , Fort Worth