5
3
2554
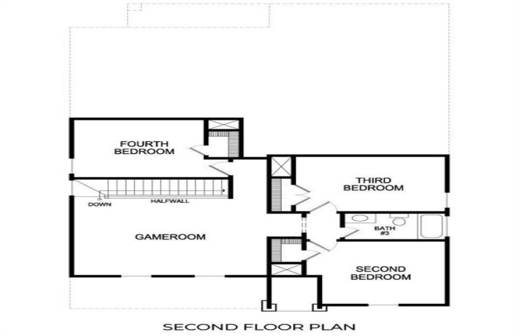
Property Description: MLS# 21077175 - Built by First Texas Homes - Nov 2025 completion! ~ Discover this spacious 5-bedroom, 3-bath home offering 2,554 sq ft of comfortable living. The main level features a convenient second bedroom with a full bathroom nearby, perfect for guests or multi-generational living. Enjoy high ceilings and an open floor plan that create a bright, inviting atmosphere ideal for entertaining. Step outside to a covered patio, perfect for outdoor gatherings. A two-car garage provides ample storage. Don’t miss your chance to own this exceptional home—schedule your tour today. Tyler F - B , Llano Springs , Fort Worth, TX