5
3
2554
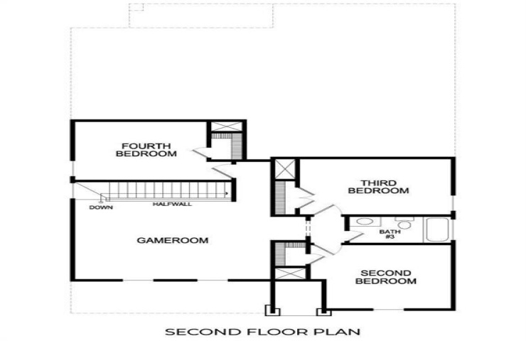
Property Description: MLS# 21077187 - Built by First Texas Homes - Oct 2025 completion! ~ Discover this spacious 5-bedroom, 3-bath home offering 2,554 square feet of comfortable living. The open floor plan features soaring high ceilings, creating a bright and inviting atmosphere. Enjoy the convenience of a second downstairs bedroom with a full bath nearby—perfect for guests or multi-generational living. Entertain with ease on the covered back patio, ideal for outdoor gatherings. A two-car garage provides ample storage and parking. Don’t miss your chance to make this exceptional home yours—schedule a tour today! Tyler F - B , Llano Springs , Fort Worth, TX