4
3
2432
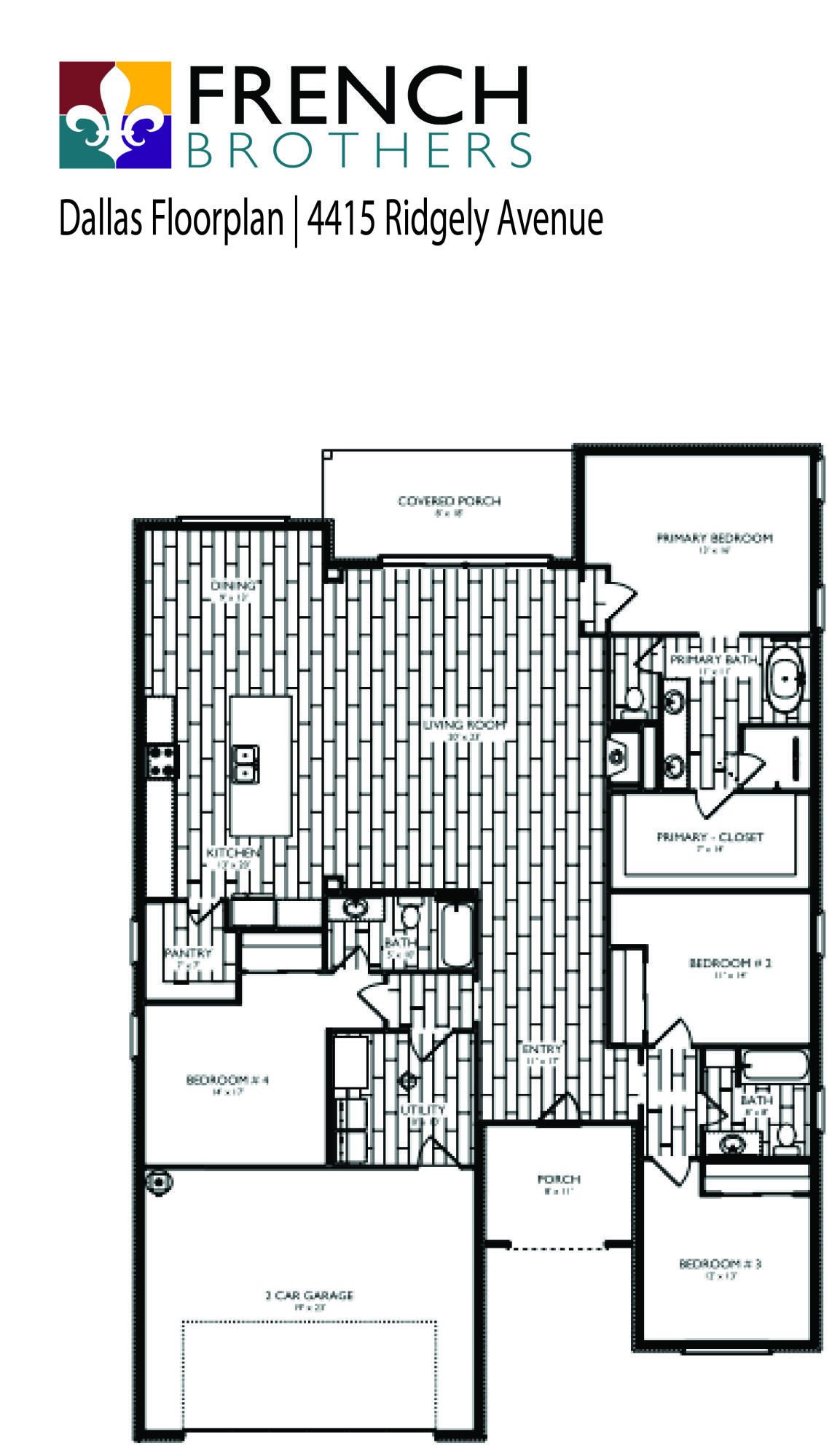
Property Description: French Brothers Homes proudly presents The Dallas! A beautiful new home under construction just steps away from the brand-new Frenship Memorial High School! With 2,432sqft of open and inviting living space, this 4 bed, 3 bathroom home offers plenty of room for everyone. The thoughtful layout includes a secondary suite, perfect for guests, teens, or in-laws. Your family will love the stylish and practical upgrades throughout! From the Crosswalk Frosted Glass front door, pantry and laundry cabinetry, to the board and batten fireplace surround that adds warmth and character to the living area. The kitchen is designed to make everyday life easier and more enjoyable, featuring a Delta workstation sink and a GE Cafe appliance package that any home cook will appreciate. Unwind in the primary suite's rain shower, a touch of luxury to end your busy day. Every detail in this home is designed with comfort, convenience, and family living in mind!