3
2
1968
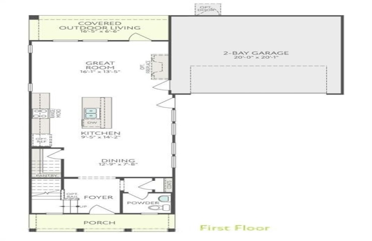
Property Description: MLS# 21080437 - Built by Tri Pointe Homes - Ready Now! ~ The Anise plan features 3 bedrooms, 2.5 baths, and 1,968 sq ft of well-designed living space with a 2-bay garage. It includes a luxury kitchen, open rails on the first floor, and sliding glass doors leading to a covered patio with a gas stub perfect for outdoor entertaining. With 8' interior doors and a private office, this home offers both style and functionality in the Garden Collection at Union Park. What you will love about this plan: Covered Outdoor Living Home Smart Features2 Bay Garage Spacious Primary Suite Luxury Kitchen Two-Stories.