4
4
3686
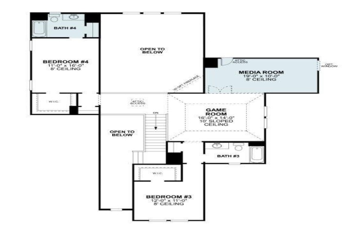
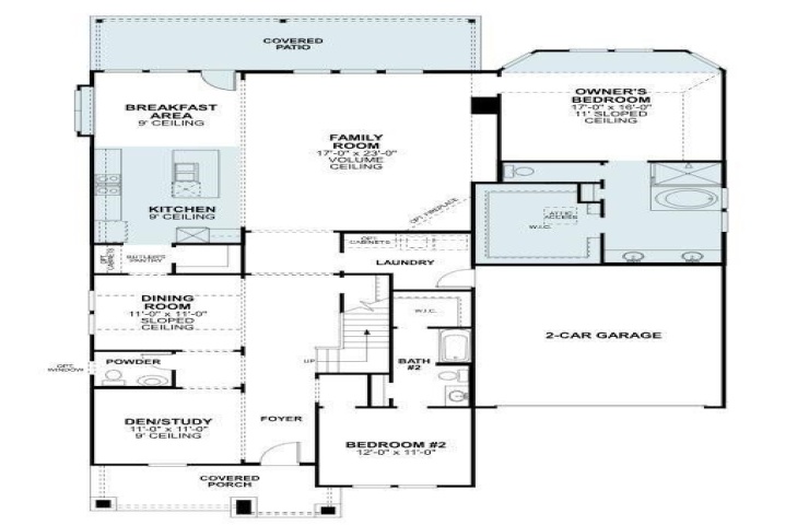
Property Description: Built by M-I Homes. Welcome to 3604 Birds Eye Lane located in the amenity-rich community of Lilyana. This stunning new construction home built by M-I Homes features a spacious layout with dozens of upgrades. Best of all it is situated on a premier homesite across the street from a beautiful community park and is zoned to top-rated Prosper ISD schools. Home Features and Upgrades: 4 bedrooms 4.5 bathrooms Bay window in the owner's bedroom Luxury owner's en-suite bathroom Gourmet kitchen Private, first-floor study Dining room with boxed-out window Media room Extended covered patio This impressive new construction home combines functionality with elegant design elements, creating an inviting atmosphere that feels both sophisticated and comfortable. The thoughtful layout features a luxurious owner's bedroom located on the first floor, providing convenience and privacy. This retreat is further enhanced by a brilliant bay window extending the space and drawing in natural light, plus an elegant deluxe owner's bathroom. The heart of this home is the spacious open-concept living area, where the kitchen seamlessly connects to dining and living spaces, creating a natural flow perfect for everyday living and special occasions alike. Tall, 2-story ceilings in the family room plus large windows throughout create an open and inviting atmosphere. With 4 bedrooms and 4 full bathrooms, this home offers ample space for family members and guests. The high-quality construction by M-I Homes ensures attention to detail throughout, from the beautiful finishes to the efficient use of space. The open layout incorporates natural light and well-proportioned rooms, creating an environment that feels both spacious yet intimate. Each area of the home has been thoughtfully planned to maximize comfort and functionality. Experience the perfect blend of style, quality, and convenience in this beautiful new construction home. Schedule your visit today!