4
2
1764
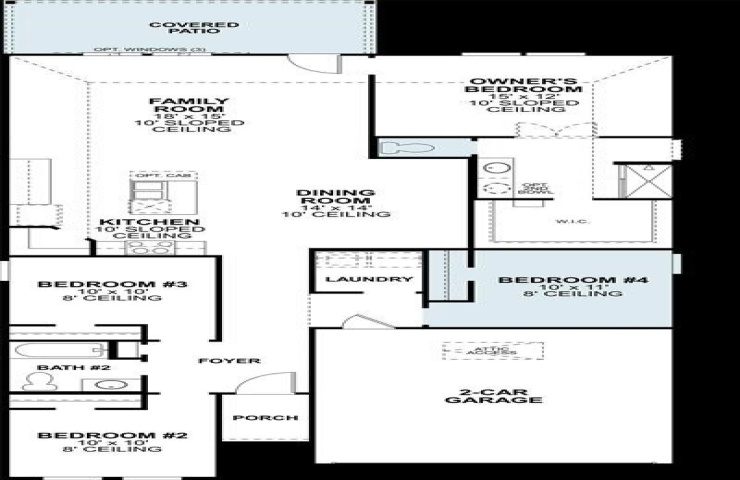
Property Description: Built by M-I Homes. Spacious Home for Sale in Crowley, TX This new construction home at 1129 South Hill Drive offers an open-concept of thoughtfully designed living space. This single-story 4-bedroom home features an open-design living space that creates a seamless flow throughout the main areas. The home's layout maximizes functionality while maintaining comfort for daily living. The open-concept design connects the kitchen, dining, and living areas, making it ideal for both everyday activities and entertaining guests. The primary suite is big and private! Did we mention 10 foot ceilings and Luxury Vinyl Plank flooring in all the main areas! Granite countertops with stainless steel appliances and large island, included with this beautiful kitchen. Located in Crowley, this home sits in a well-established neighborhood known for its family-friendly atmosphere. The area offers convenient proximity to several parks, providing excellent opportunities for outdoor recreation and activities. The neighborhood's thoughtful design emphasizes community connectivity while maintaining individual home privacy. M-I Homes has incorporated quality materials and attention to detail throughout the construction process. This new construction home presents an opportunity to own a thoughtfully designed space in a desirable Crowley neighborhood. Contact us today to learn more and schedule your visit today!