4
2
2010
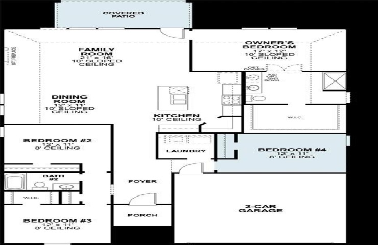
Property Description: Built by M-I Homes. Discover this beautiful new construction home at 7733 Moosewood Drive in Fort Worth, TX! Home Features: - 4 spacious bedrooms, including owner's bedroom privately located at rear of home. - 2 full bathrooms - Open-concept living space perfect for entertaining - Quality design throughout with attention to detail - Single-story layout for convenient living This thoughtfully designed new construction home provides a welcoming environment with its seamless flow between common areas. The open-concept living space creates a bright, airy atmosphere that's ideal for both everyday living and hosting gatherings with family and friends. The strategically placed owner's bedroom offers privacy and convenience with its en-suite bathroom. Three additional bedrooms provide comfortable accommodations for family members or guests. M-I Homes has crafted this residence with quality materials and careful attention to design details throughout. From the functional layout to the attractive finishes, every aspect of this home demonstrates thoughtful planning and execution. This home has amazing amenities including granite in the kitchen, luxury vinyl plank in the common spaces, and much more. As one of our new homes for sale in Fort Worth, TX, 7733 Moosewood Drive is located in Sanderos, a boutique community which offers an affordable way to live in proximity to downtown Forth Worth. Sanderos also benefits from being situated in the prestigious Eagle Mountain ISD. Schedule your visit today!