4
3
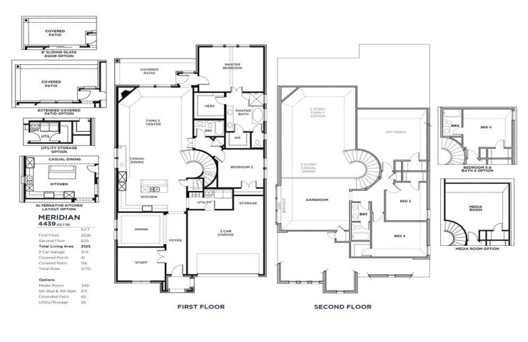
3454
Property Description: Discover the stunning Shaddock-built Meridian floor plan, offering 3,454 square feet of comfortable living space. This open-to-below design features a bright, luxurious kitchen with stainless steel appliances, and a spacious primary suite complete with a relaxing garden tub and generous shower. Gorgeous wood flooring, designer tile selections, and numerous upgrades are included throughout. The separate garage entry and utility room are a huge plus!