4
3
2749
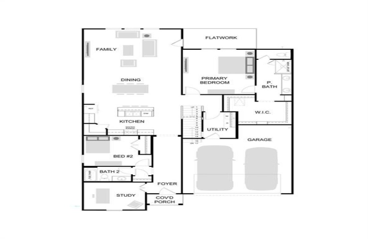
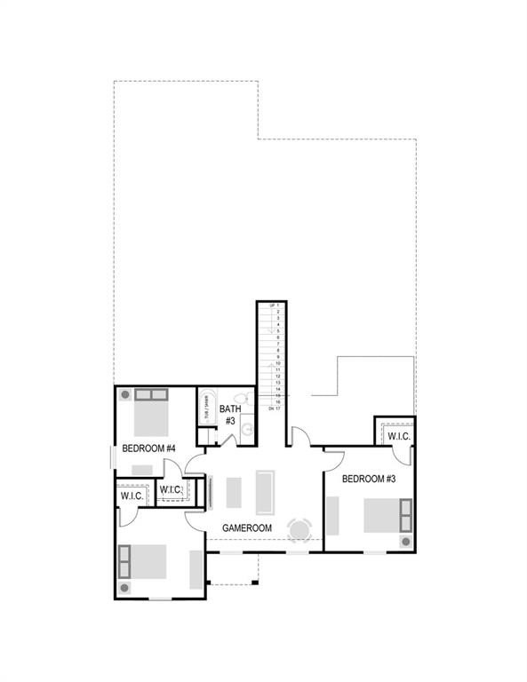
Property Description: MLS# 21083960 - Built by Trophy Signature Homes - Ready Now! ~ Welcome home to the Holden! This four bedroom, three bathroom plan offers generous space for entertaining and everyday living. The expansive living area flows seamlessly into a gourmet kitchen with a center island, while the primary suite is tucked away for a peaceful retreat. Three additional bedrooms provide ample opportunities for customization, whether for a home office, guest room, or extra storage.