5
3
3043
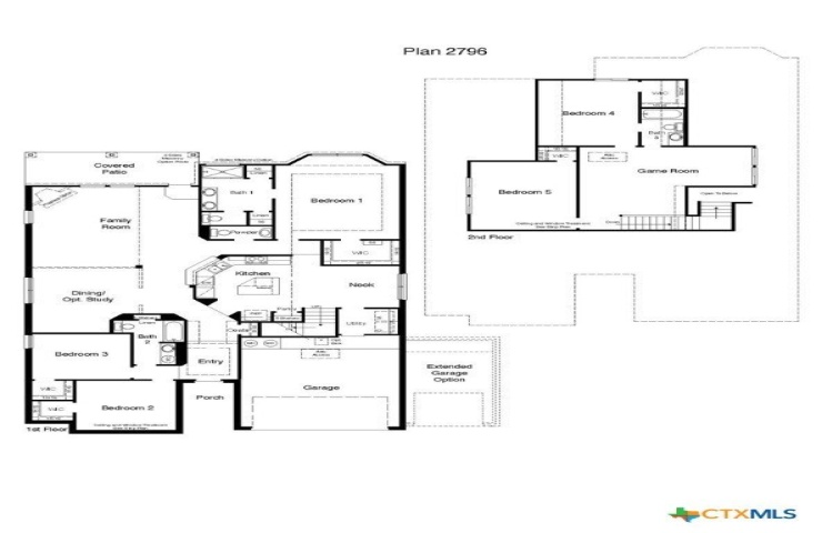
Property Description: Find your home in the Sterling Meadows community in Salado, TX with the Newburgh floorplan. With approximately 3,043 sq. ft., you'll have the perfect space in this 5 bedroom, 3.5 bath layout. Park your car or store your belongings in the attached 2-3 car garage option. When you walk in the door, you'll have access to 2 secondary bedrooms and a secondary bathroom. Walking further down the hall, you will enter the dining room with the option of study and family room. Enjoy the covered patio that is connected to the family room. Find the primary bedroom next to the kitchen, with a spacious walk-in closet and bathroom with a double vanity sink and a walk-in shower. You will also have access to the kitchen that is separated from the great room by a breakfast bar. Enjoy the spacious kitchen with its beautiful flat panel maple cabinetry and decorative tile backsplash, along with stainless-steel appliances. Find access to the laundry room and garage from the kitchen that is right next to the stairs leading to the second floor where you will immediately find the game room, with access to 2 secondary bedrooms with walk-in closets and secondary bathroom. Want to learn more about the Newburgh floorplan? Contact us today!