8
4
0
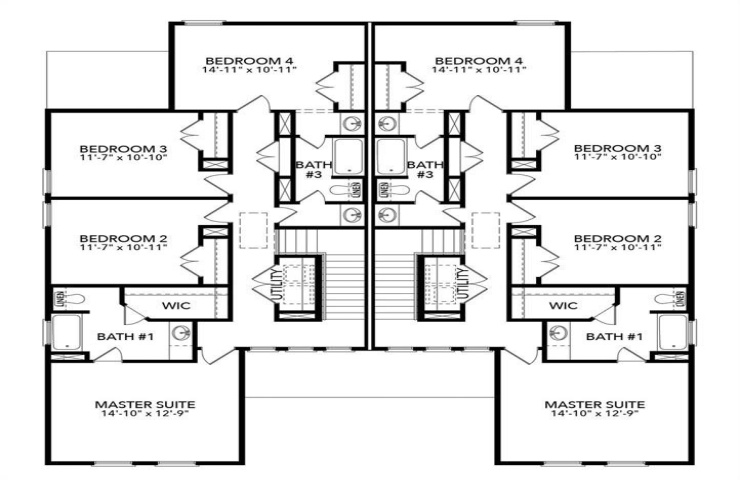
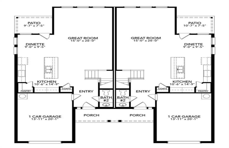
Property Description: MLS# 21085353- Built by New Global- Ready Now! ~ Complete duplex, ready to close. Total sf. is 4,046sf. Each half is 2,023sf, 4 bed, 2.5 bath, 1 car garage w-private, fenced-in backyard. Taxes of 1.91%, no PID, no MUD. $600 annual HOA. New construction 10-year structural warranty, 2-year, electrical, plumbing warranty. New appliance warranty, 1-year builder warranty. Close to UNT and TWU. 100 retail stores within 5 minutes. 27 miles to DFW airport, 39 miles to DT Dallas, 35 miles to DT Ft. Worth. The Eagle Cove Duplex community is investor friendly.