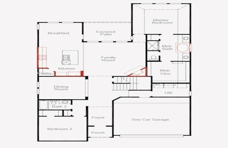
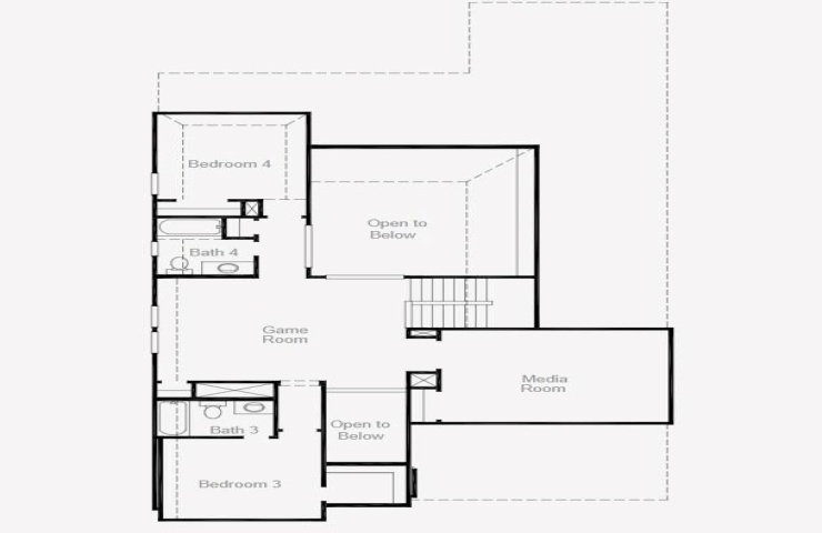
Property Description: MLS# 21085668 - Built by Coventry Homes - Nov 21 2025 completion! ~ Step into this stunning home featuring soaring ceilings and sleek LVP floors that set the tone for modern elegance. A private downstairs guest suite offers comfort and privacy for visitors. The eye-catching kitchen boasts two-tone cabinetry, stainless steel appliances, and a large island perfect for entertaining. The great room shines with a stylish gas fireplace and plenty of natural light. Unwind in the luxurious primary suite with dual vanities, a soaking tub, and a separate shower with built-in seating. Upstairs, enjoy a media room, game room, and two additional bedrooms with full baths. Don’t miss your chance to call this exceptional home yours!