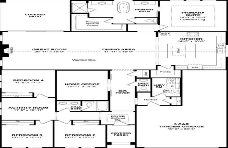
Property Description: This charming 1-story home features 4 spacious bedrooms, 2.5 baths, a versatile activity room and private home office. A lovely kitchen with white quartz countertops, cool grey cabinets, and black metal shade pendant lighting illuminating the island overlooks the dining area and great room with access to the covered patio. An elegant primary bedroom includes a relaxing private bath with dual sinks and large walk-in closet.