5
3
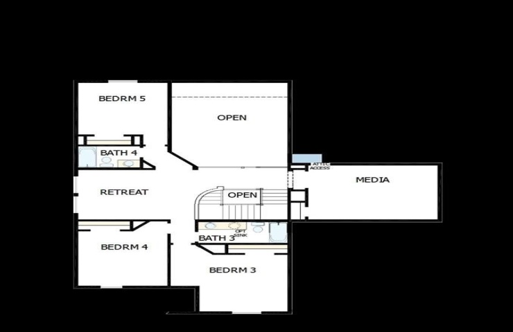
3887
Property Description: Spacious and elegant two-story home featuring 5 bedrooms, 4.5 baths, a private study, retreat area, and media room. Enjoy high ceilings, abundant natural light, and an open-concept layout ideal for entertaining. Includes a 3-car garage and a luxurious primary suite with a spa-like bath. Perfect blend of comfort, style, and functionality.