4
2
1605
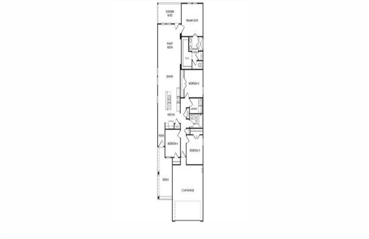
Property Description: Brand new, energy-efficient home available by Nov 2025! With four bedrooms in the Carlsbad plan, you can customize the needs of your family. White cabinets with veined white quartz countertops, light tan EVP flooring with light taupe carpet. Spend the weekends debating what activity to do in this amenity-filled community, make a splash in the resort-style pool, pick up a game of basketball, or let the kids loose on the playground. With quick access to US 380, residents will enjoy the benefits of a short commute to downtown McKinney, Frisco, or Richardson to enjoy nearby shopping and entertainment. Each of our homes is built with innovative, energy-efficient features designed to help you enjoy more savings, better health, real comfort and peace of mind.