4
2
1838
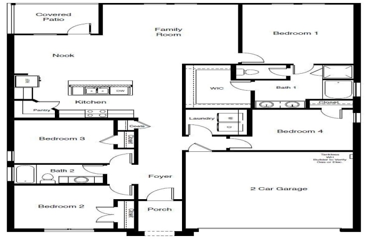
Property Description: Beautiful new construction with granite and stainless appliances. Great location near shopping and restaurants. Subdivision offers a community pool and park. Photos and videos are for illustration purposes only. Features, colors, and options may vary in each community. Additional charges may apply for certain upgrades. Landscaping and furnishings not included.