5
3
2940
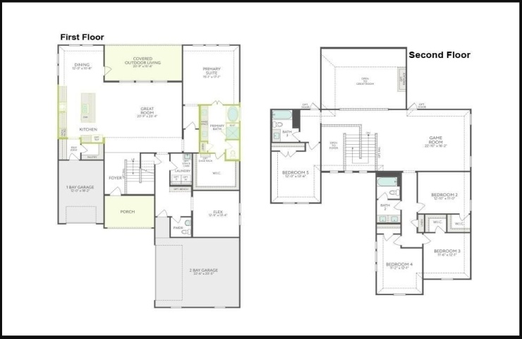
Property Description: MLS# 21086773 - Built by Tri Pointe Homes - Ready Now! ~ The Owen plan offers 5 bedrooms, 3 baths, and 2,940 sq ft of beautifully designed living space with a 2-car garage. Highlights include a luxury kitchen, spa-like primary bath with a soaking tub, and a box window in the primary bedroom for added natural light. With open rails on both floors and 8' interior doors throughout, the home feels spacious and refined. Thoughtful touches like the extended covered patio and elegant architectural details make this home a standout in the Bridgewater community. What you'll love about this plan: Open-Concept Floor Plan Home Smart Features Volume Ceilings in Great Room Two Story J-Swing Garage Covered Outdoor Living