6
3
3692
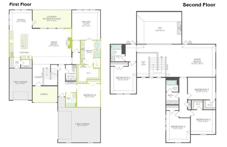
Property Description: MLS# 21086847 - Built by Tri Pointe Homes - Ready Now! ~ Under Construction : Estimated Availability October 20252917 Andesite Road at Painted Tree offers 6 bedrooms, 4 baths, and 3,692 sq. ft. of elevated living with a luxury kitchen,primary bath with tub, and a dramatic42? linear fireplace. With8' doors,open rails with stained treads and painted risers, and a3-car garage, this home blends spacious design with refined finishes in a vibrant community setting.What youll love about this plan:Open-Concept Floor PlanLuxury KitchenVolume Ceilings in Great RoomTwo StoryFlex RoomJ-Swing GarageCovered Outdoor Living