4
2
1377
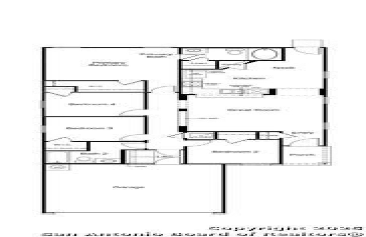
Property Description: This inviting home welcomes you with 9-ft. first floor ceilings that enhance its open and airy design. The kitchen blends style and function with Woodmont Cody 42-in. upper cabinets, an Emser CatchTM glossy tile backsplash, Whirlpool stainless steel appliances, and a sleek Moen faucet. In the primary bath, enjoy upgraded cabinets and a relaxing 42-in. garden tub/shower accented with Daltile tile surround. Elegant Brook ceramic tile flooring flows throughout the bedrooms, kitchen, and great room for a cohesive look. Thoughtful touches include a Monterey-style entry door and Kwikset Polo knob interior hardware. Additional features like a wireless security system provide modern convenience and peace of mind. Outdoors, a covered patio creates the perfect space for relaxing or entertaining.