4
2
1898
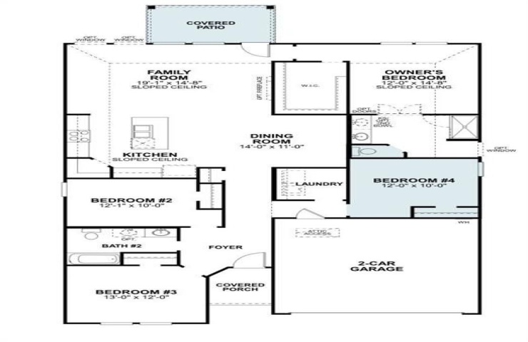
Property Description: Built by M-I Homes. Discover this stunning new construction home at 1816 Quapaw Trail in Mesquite, TX. This gorgeous 4-bedroom, 2-bathroom home offers exceptional design with plenty of space for entertaining family and friends. The home's floorplan emphasizes both comfort and functionality. The open-concept design naturally connects the living areas, creating a bright and inviting environment for relaxation and entertaining. You'll love the massive family room with its high ceiling and luxury vinyl plank. The owner's bedroom, situated in its own private corner, provides a quiet retreat, complete with an en-suite bathroom featuring double sinks and a walk-in closet. The 3 additional bedrooms offer flexibility for family, guests, or a home office. Out back, you will find a patio great for relaxing with friends and family. This new construction home represents an excellent opportunity to own a move-in-ready residence combining thoughtful design, quality craftsmanship, and practical living spaces in Mesquite, TX. Schedule your visit today!