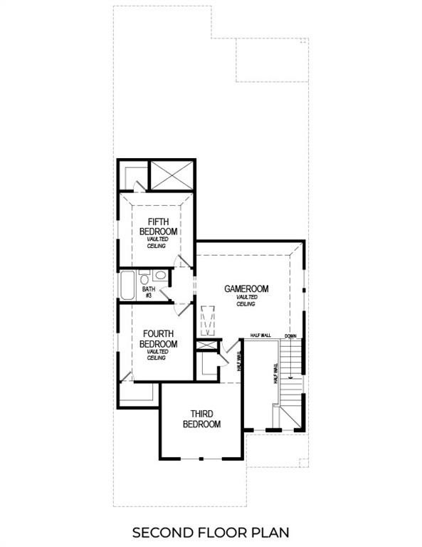
Property Description: MLS# 21089050 - Built by First Texas Homes - Ready Now! ~ The Truman Select F offers 5 bedrooms, 3 bathrooms, and 2,508 sq. ft. of thoughtfully designed living space that adapts to your lifestyle. From everyday routines to special moments, this open-concept layout supports how you live—with comfort, functionality, and style in mind. Enjoy upgraded flooring throughout the main living areas and primary bedroom, and a gourmet kitchen featuring built-in stainless steel appliances, an oversized California island, and generous modern cabinetry. The spacious utility room adds convenience, while the first-floor secondary bedroom and full bath provide flexible space for guests or a home office. Upstairs, an oversized game room anchors additional bedrooms and a well-appointed full bath, creating the perfect retreat for entertainment or everyday living. The relaxing covered patio completes the experience with outdoor enjoyment in mind.