5
3
2660
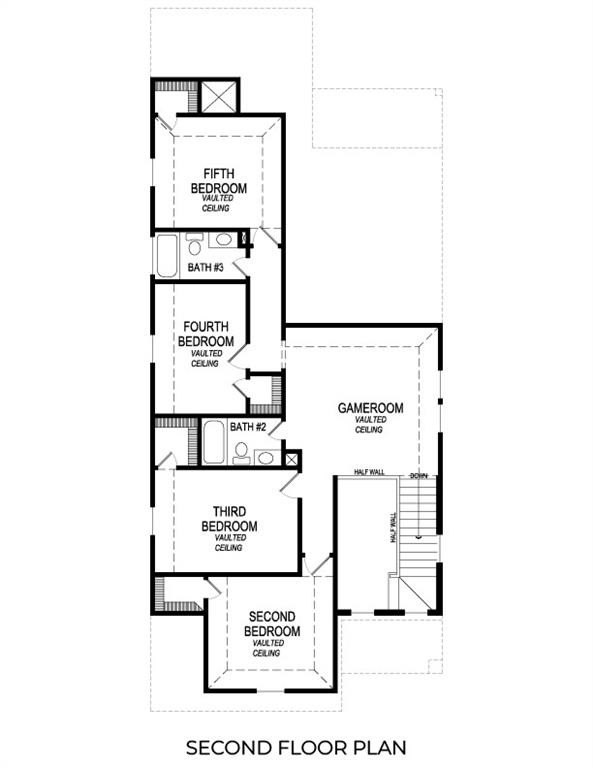
Property Description: MLS# 21089060 - Built by First Texas Homes - Nov 2025 completion! ~ Discover this impressive 5-bedroom, 3.5-bath home offering 2,638 sq ft of thoughtfully designed living space. Enjoy a spacious primary suite with dual vanities, a gourmet kitchen perfect for entertaining, and a versatile upstairs game room. The covered patio extends your living area outdoors, while extensive trim work, custom architectural details, and upgraded flooring in all wet areas add a touch of luxury. A two-car garage completes this exceptional home. Schedule your tour today and make this dream home yours. Harrison F - E , Solterra , Mesquite, TX