5
4
3624
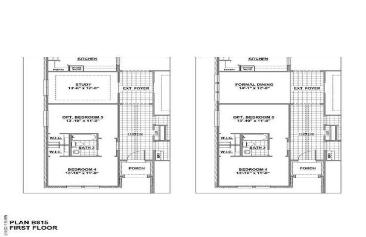
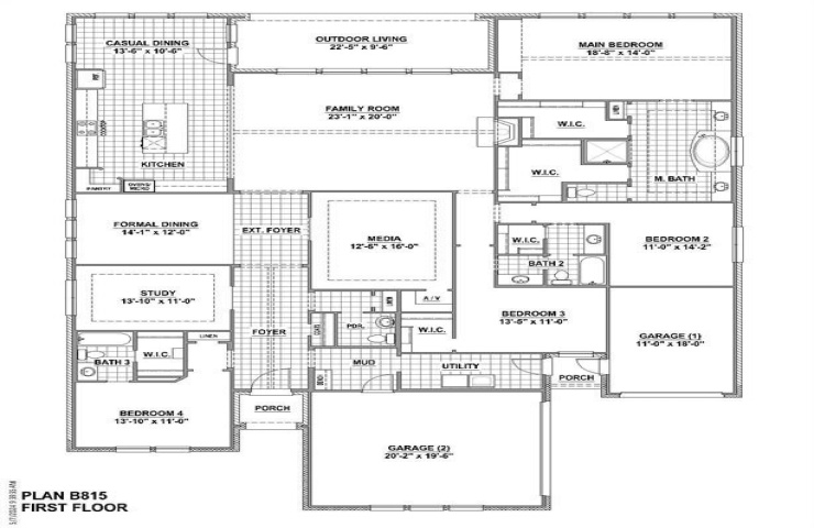
Property Description: You'll feel right at home in this gorgeous 1-story design with 5 bedrooms, 4 full baths, 1 powder bath, study and media room. At the front of the home you will find the laundry and mud room that connect to the 4-car garage. On the opposite side of the entryway you will find a secondary bedroom with an en-suite bathroom and the study. Before reaching the main living area, you’ll pass the formal dining room located across the hall from the media room with an AV closet. The open-concept kitchen, family room and breakfast nook is an entertainer’s dream with vaulted ceilings, an abundance of cabinetry and a central fireplace. The main bedroom retreat is privately located at the back of the home and features 2 walk-in closets, dual vanities and a large soaking tub.