5
4
2120
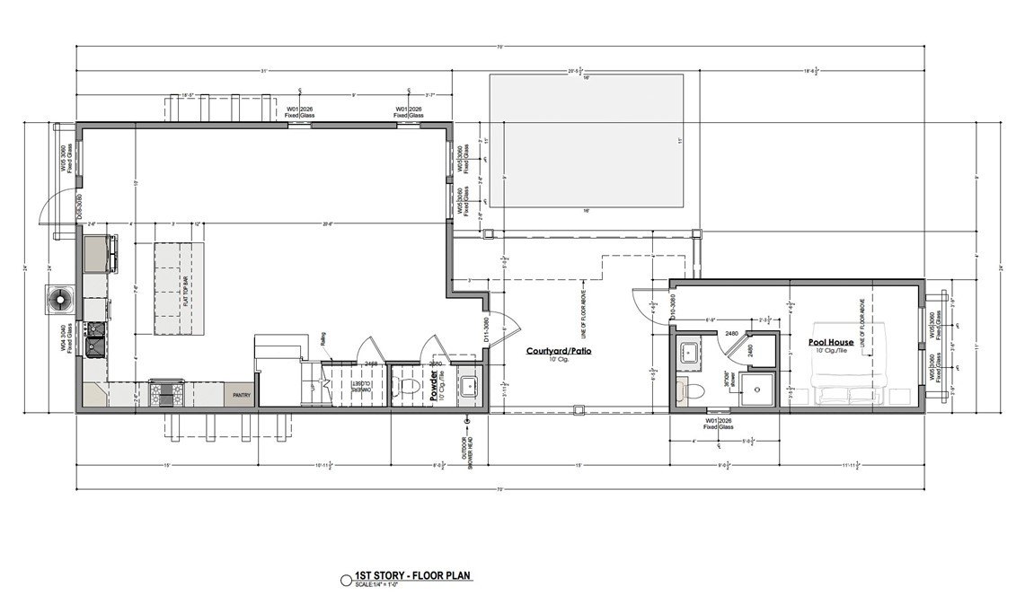
Property Description: Introducing Inlet by the Sea - upscale beach homes hidden in the heart of Port A! New construction by Brandon Lafayette Homes, a premier Port Aransas builder, with 5 bedrooms, 4.5 bathrooms plus a private pool! Two gorgeous finish package options with quartz countertops, porcelain tile and hardwood flooring, tile showers, stainless appliances with gas-range, and xeriscape landscaping. Super-sweet location in Old Town Port Aransas tucked away from traffic and hustle & bustle yet easy proximity for walking or golf carting to the beach, pier, shopping, & dining. Short-term rental allowed. Don't miss the boat on this new home opportunity!