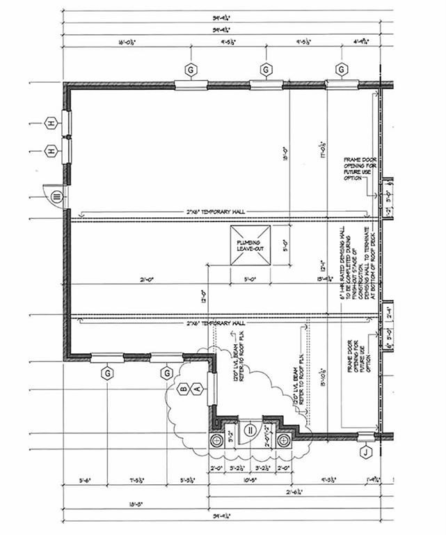
1589
Property Description: UPDATE: Construction nearing completion! Medical Office Space for Lease – North Fort Worth, Alliance Size: ~1,589 SF Location: Riverside Dr. & North Tarrant Pkwy – in a busy, fast-growing corridor of North Fort Worth Delivery: Scheduled for completion January 2026 Cost: Below market lease rate of $27 per SF per year. Highlights: Brand-new medical office construction in a rapidly expanding trade area surrounded by strong residential growth and established medical practices. Conveniently located near hospitals (0.5 miles to Medical City Alliance, 2.5 miles to Texas Health Harris Methodist Alliance) and major thoroughfares, this space is ideal for a healthcare provider looking to grow with the community. Perfect for a variety of uses including: - Primary Care or Family Practice - Pediatrics - Dentistry or Orthodontics - Physical Therapy or Sports Medicine - Chiropractic Care - Dermatology or Med Spa - OBGYN or Women’s Health - Allergy, ENT - Specialty Clinics (e.g., cardiology, etc.)