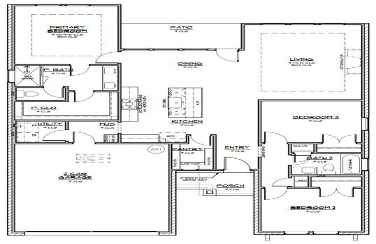
Property Description: Welcome to Water Crest Ranch, a brand-new subdivision where modern living meets West Texas charm. This new build 3-bedroom, 2-bathroom home offers the perfect blend of style, comfort, and convenience in one of Abilene's most exciting new communities. Inside, you'll find a bright open-concept layout with high-quality finishes and thoughtful details throughout. The inviting electric fireplace adds a cozy focal point to the living space, while the modern kitchen flows seamlessly into the dining and family areas — ideal for entertaining or relaxing at home. Enjoy all the benefits of new construction including energy-efficient systems and brand-new appliances including gas range and tankless hot water heater. Whether you're starting fresh or settling down, Water Crest Ranch offers both comfort and convenience. Schedule your tour today and be among the first to call Water Crest Ranch home!