4
2
2404
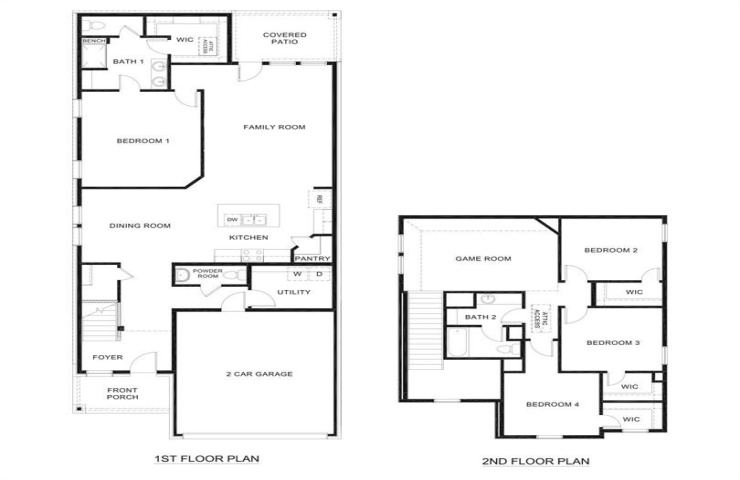
Property Description: New construction by D.R. Horton. H30R Ryker 2 Story Floorplan. Winchester Crossing is located within the rapidly growing city of Princeton, in Collin County. With convenient access to Hwy 380, and great community amenities including pool with splashpad and playground. D.R. Horton includes smart home features and offers a variety of floorplans from 1,444 sq. ft. to 2,598 sq. ft. Call to schedule a tour today! Spacious single story 4 Bed 2.5 Bath home 2598 SF with oversized island, stacked dining and family room and great room sizes, game room and study!